連云港鷹游紡機有限責任公司 |
|
| 聯系人: | 電話: |
| 傳真: | 地址:江蘇省連云港市海州開發區振興路1號 |
| 郵編:2220062 | 郵箱: |
| 網址:http://yyfj.zglcn.net/ | |
.jpg)
.jpg)
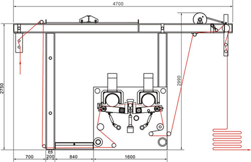
產品用途及主要技術參數
1.本機適用于人造毛皮、晴綸毛毯、呢絨等產品的后整理表面燙光
2. 幅寬:2000mm 2200mm 2500mm
3.工作速度:5-16m/min
4.燙光輥:φ268mm
5.轉速:前輥1100r/min 后輥900r/min
6.裝機總功率:79.1KW 87.5KW 102.7KW
7.機器重量:約4000kg
8.機器外形尺寸 (長x寬x高) :4700x 3880x 2990(2000mm)









|
無錫二橡膠股份有限公司 |
常州市潤源經編機械有限公司 |
|
青島云龍紡織機械有限公司 |
黃石經緯紡織機械有限公司 |