公司名稱:連云港鷹游紡機有限責任公司

.gif)
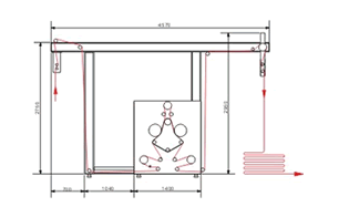
產品名稱: SME472E雙輥燙光機
產品售價: 面議(電話:0518-85913340)
產品規格: SME472E
產品備注: 幅寬: 2000MM 2200MM 2500MM
產品類別: 燙剪系列 → SME472E雙輥燙光機
1、適用于毛紡、人造毛皮、毛毯、經編等織物的燙光
2、機器幅寬: 2000MM 2200MM 2500MM
3、工作速度:0-17M/MIN
4、燙光輥:電熱功率:69.6KW
燙光溫度:100-200℃±5℃(自控)
氈圈包角:α=0-35℃
5、電機功率:10.75KW
6、外形尺寸:(長X寬X高)4570 X4000 X3170(MM)
電話:0518-85915139 85913340
傳真:0518-85915999
郵編:222062
地址:江蘇省連云港市海州開發區振興路1號
網址:http://www.lygtm.com/