公司名稱:浙江日發紡織機械有限公司
.jpg)
化纖倍捻機的前道設備,適用于各種不同原料的有捻并合,也可作為絡筒機使用。并可單獨用于弱捻絲線的最終加工。
【 產品特色 】
>>合理的保護捻度,可獲得最高的線速度,由于有捻并合,絲、線的集束性能良 好,下道工序退解穩定
>>單絲張力可任意調節,使產品更具風格
>>本機配備單絲斷頭自停裝置并附加切絲器,獨特的壓錕結構使操作更簡便,產品質量更好
>>錠速、線速度及升降速度等均通過變頻器任意調整,使操作更簡便
>>整個運行過程均采用PLC控制,由此可得到穩定的卷繞形狀,以減少下道工序的斷頭率
【 技術參數 】
錠數120(基本型)卷繞筒管長度≤320mm
錠距217mm卷繞成形方式反絡式,填充式,復合式,平行式
錠速4000~8000rpm并合根數2~3根
捻度10~100T/M退解筒子直徑≤Φ420mm
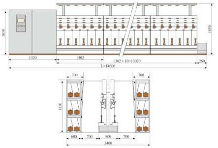
升降速度5~60mm/s整機尺寸14600×3400×1850mm(含二排筒子架)
升降結構鋼領板結構+同步帶電機功率主電機7.5kw
鋼領直徑Φ110mm滾輪電機2.2kw
卷繞筒管直徑直管(外徑Φ42,內徑Φ37.2)升降電機200kw
【 外形尺寸圖 】
.jpg)
地址:浙江省新昌縣高新技術產業園區(南巖)日發數字科技園
電話:0575-86299066
傳真:0575-86299077
郵編:312500