- [新聞]-->鷹游紡機:FA900針梳機
- [新聞]-->鷹游集團:老張與小張的行走人生
- [新聞]-->有容乃大 同贏天下
- [產品]-->SME472D雙輥三次正反面燙光機
- [產品]-->LMV330平幅連續式噴氣脫水機
- [產品]-->LMV561全自動平網磁棒印花機
- [視頻]-->鷹游紡機公司
- [視頻]-->SME485E 高速刷毛機-連云港鷹游紡機有限責任公司
- [視頻]-->MB331C碳纖維起毛機-連云港鷹游紡機有限責任公司
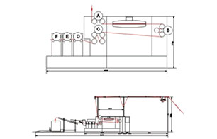
您所在的位置:紡機網 >> 連云港鷹游紡機有限責任公司 >> FA200絲束拉斷機
FA200絲束拉斷機
發布時間:2011-08-29


喂入材料:PAC PES VC
建議的絲束重量(總體來說):120-200ktex (千特)
纖維細度:1.1-17dtex (分特)
牽伸范圍: 2.2-22倍 正常:3-6倍
中等纖維長度(豪特長度) :80-130mm
纖維長度變化系數(豪特長度,阿爾纖維長度試驗儀讀數) :CV40-50%
纖維的伸縮率(PAC):15-28%
剩余汽化縮水率(csri之后):<1%
條子重量:30-60ktex (千特)
出條速度:240m/min
機器總功率:115KW
外形尺寸(長X寬X高):14400X2150X4000(mm)






